Si deseas vivir en Antigua Guatemala, pueden ubicar en alquiler espectacular Casa, 300 m2. Guatemala

General
ID del Anuncio:27252
Tipo:Comprar
Tipo de Propiedad:Casa
Precio:610 000 USD Venta
Descripción:

Descubra esta excelente oportunidad de inversión en un exclusivo condominio residencial. 

Este complejo de alta calidad se caracteriza por sus amplias calles, una moderna garita de seguridad y espacios verdes diseñados para el recreo y la convivencia familiar, creando un entorno seguro y agradable para sus residentes.

Características del condominio:
- Calles anchas que facilitan la circulación y aportan comodidad.
- Seguridad las 24 horas con garita de control de acceso.
- Parques y áreas recreativas para el disfrute de toda la familia.

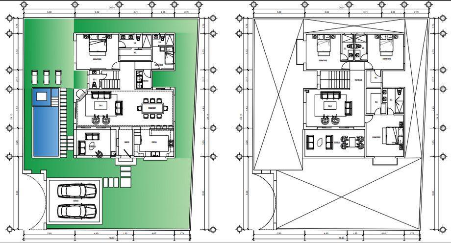
Propiedad en venta: Residencia de lujo con un diseño espacioso y funcional.  
Detalles de la casa:
- Área de construcción: 300 m²
- Área del terreno: 653 varas cuadradas (aproximadamente 607 m²)
- Dimensiones del terreno: 24 metros de frente por 20 metros de fondo
- Sala principal con chimenea, ideal para reuniones y ambientes acogedores
- Comedor amplio y luminoso, conectado a la sala
- Cocina moderna equipada con gabinetes de alta calidad y top de cuarzo, perfecta para preparar deliciosas comidas
- Sala familiar adicional, ideal para momentos de descanso y entretenimiento
- Dormitorio de servicio con baño privado, para mayor comodidad
- Baño de visitas equipado con acabados de lujo
- Cuatro dormitorios con closets empotrados, diseñados para brindar confort y privacidad
- Cuatro baños completos con acabados modernos
- Jardín exterior, perfecto para actividades al aire libre y reuniones sociales
- Cisterna de gran capacidad para garantizar el suministro de agua
- Pérgola techada, ideal para eventos y cenas al aire libre
- Terraza espaciosa para disfrutar del aire libre y vistas panorámicas
- Dos parqueos techados, con espacio adicional para visitantes

Precio de venta: $610,000 + impuestos  
*Nota: El mantenimiento mensual es de Q550 e incluye seguridad, vigilancia en la garita y mantenimiento de áreas comunes.*  
*Entrega prevista para enero de 2027.*

Código de la propiedad: 322633

Contáctenos para más información y agendar una visita:
- Teléfono PBX: 2458 4555
- WhatsApp: +502 2458 4555
- Correo electrónico: info@inmoacodi.com

No deje pasar esta oportunidad de adquirir una propiedad en uno de los condominios más exclusivos y seguros de la zona. ¡Esperamos su contacto!


Calculadora de Préstamo

Pago: USD

Pago en exceso: USD



Información general
  • Sacatepequez, Antigua Guatemala, San Gaspar Vivar

    • Casa
  • Comprar610 000 USD
Publicada por
info@inmoacodi.com
  • ACODI
  • Por favor, inicie sesión en el sistema para ver la información
  • Anuncios del usuario (2600)

Anuncios similares


LO MAS SOLICITADO

APARTAMENTOS

CASAS

LOCALES

BODEGAS

Apartamentos en alquiler Guatemala

Casas en alquiler Guatemala

Locales en alquiler zona 1

Bodegas en alquiler zona 2

Apartamentos en alquiler zona 1

Casas en alquiler zona 1

Locales en alquiler zona 2

Bodegas en alquiler zona 5

Apartamentos en alquiler zona 4

Casas en alquiler zona 2

Locales en alquiler zona 4

Bodegas en alquiler zona 7

Apartamentos en alquiler zona 5

Casas en alquiler zona 9

Locales en alquiler zona 6

Bodegas en alquiler zona 9

Apartamentos en alquiler zona 7

Casas en alquiler zona 10

Locales en alquiler zona 7

Bodegas en alquiler zona 10

Apartamentos en alquiler zona 10

Casas en alquiler zona 11

Locales en alquiler zona 9

Bodegas en alquiler zona 11

Apartamentos en alquiler zona 11

Casas en alquiler zona 13

Locales en alquiler zona 10

Bodegas en alquiler zona 12

Apartamentos en alquiler zona 13

Casas en alquiler zona 14

Locales en alquiler zona 12

Bodegas en alquiler zona 13

Apartamentos en alquiler zona 14

Casas en alquiler zona 15

Locales en alquiler zona 11

Bodegas en alquiler zona 14

Apartamentos en alquiler zona 15

Casas en alquiler zona 16

Locales en alquiler zona 13

Bodegas en alquiler zona 15

Apartamentos en alquiler zona 16

Casas en venta Guatemala

Locales en alquiler zona 14

Bodegas en alquiler zona 16

Apartamentos en venta zona 1

Casas en venta zona 1

Locales en alquiler zona 15

Bodegas en alquiler zona 17

Apartamentos en venta zona 2

Casas en venta zona 2

Locales en alquiler zona 16

Bodegas en alquiler zona 18

Apartamentos en venta zona 4

Casas en venta zona 4

Locales en venta zona 4

Bodegas en venta zona 5

Apartamentos en venta zona 5

Casas en venta zona 5

Locales en venta zona 6

Bodegas en venta zona 6

Apartamentos en venta zona 7

Casas en venta zona 6

Locales en venta zona 9

Bodegas en venta zona 9

Apartamentos en venta zona 10

Casas en venta zona 7

Locales en venta zona 10

Bodegas en venta zona 11

Apartamentos en venta zona 11

Casas en venta zona 9

Locales en venta zona 12

Terrenos en alquiler zona 1

Apartamentos en venta zona 13

Casas en venta zona 10

Locales en venta zona 14

Terrenos en alquiler zona 10

Apartamentos en venta zona 14

Casas en venta zona 11

Locales en venta zona 15

Terrenos en alquiler zona 16

Apartamentos en venta zona 15

Casas en venta zona 12

Locales en venta zona 16

Terrenos en venta zona 1

Apartamentos en venta zona 16

Casas en venta zona 13

Oficinas en alquiler zona 1

Terrenos en venta zona 2

Edificios en alquiler zona 1

Casas en venta zona 14

Oficinas en alquiler zona 4

Terrenos en venta zona 5

Edificios en alquiler zona 7

Casas en venta zona 15

Oficinas en alquiler zona 5

Terrenos en venta zona 7

Edificios en alquiler zona 10

Casas en venta zona 16

Oficinas en alquiler zona 7

Terrenos en venta zona 8

Edificios en alquiler zona 13

Casas en venta zona 18

Oficinas en alquiler zona 9

Terrenos en venta zona 9

Edificios en alquiler zona 15

Oficinas en alquiler zona 10

Terrenos en venta zona 10

Edificios en venta zona 5

Oficinas en alquiler zona 11

Terrenos en venta zona 11

Edificios en venta zona 9

Oficinas en alquiler zona 12

Terrenos en venta zona 14

Edificios en venta zona 10

Oficinas en alquiler zona 14

Terrenos en venta zona 15

Edificios en venta zona 15

Oficinas en alquiler zona 15

Terrenos en venta zona 16

Oficinas en alquiler zona 16

Terrenos en venta zona 17

Oficinas en venta zona 1

Terrenos en venta zona 18

Oficinas en venta zona 4

Oficinas en venta zona 9

Oficinas en venta zona 10

Oficinas en venta zona 11

Oficinas en venta zona 13

Oficinas en venta zona 14

Oficinas en venta zona 15

Oficinas en venta zona 16

^ Volver al principio